When you’re making an offer to purchase real estate, you need to form the right real estate deal between the owner and yourself. Therefore, writing an offer to purchase a real estate document is critical. Make sure that your paper meets all the legal requirements.
Table of Contents
Why do you need Purchase Offer–Real Estate Form?

Every real estate purchase offer letter is different in some respect. Realtors differ on the information to include and whether you need a cover page. However, an overall real estate purchase offer letter format will help you lay down three crucial points. The point of this post is to discuss how you can plan a purchase offer letter in the best way possible and avoid common mistakes.
Please include this in your purchase offer. If not, then a handwritten letter from you might be a good way to go about it. A handwritten note shows that you are still thinking of them and their family despite your already working on buying their property. But this doesn’t have any place in your offer since it is just an outward show of caring that doesn’t really make much difference in the end.
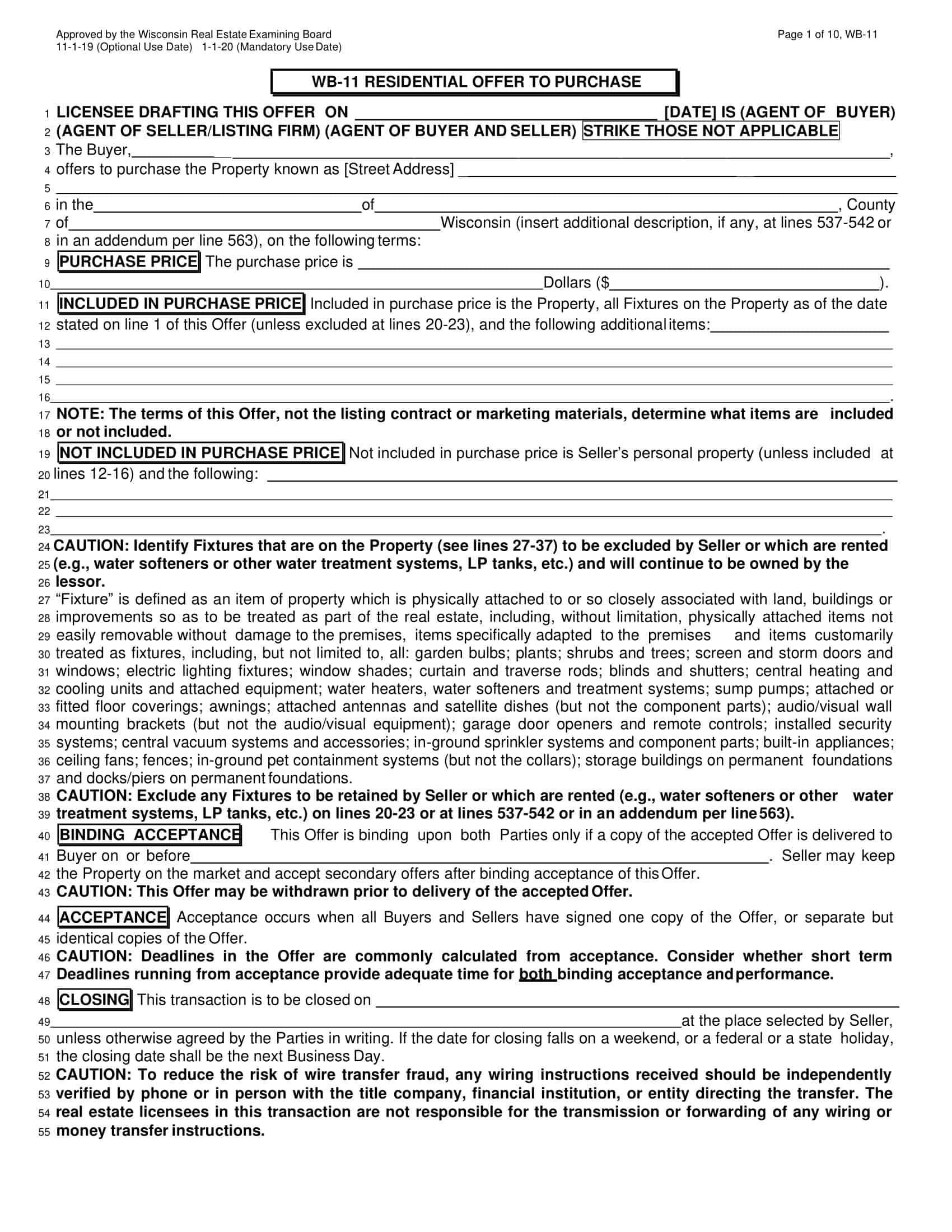
Offer To Purchase Real Estate Templates
“Offer to Purchase Real Estate Templates” are pre-designed, comprehensive documents that facilitate the process of buying and selling properties. These templates serve as a framework to outline the terms and conditions of a real estate transaction, ensuring clarity and legal protection for both the buyer and the seller.
These templates typically contain a series of standardized clauses and sections that cover essential aspects of the purchase agreement. They provide a clear structure for including crucial details such as property information, purchase price, financing terms, deposit amount, contingencies, and closing dates.
By utilizing an offer to purchase real estate template, individuals involved in a real estate transaction can save time and effort. These templates are created by legal professionals with expertise in real estate law, ensuring that they adhere to relevant regulations and comply with local jurisdiction requirements.
Factors to consider
Real estate is one of the most important and valuable investments that every individual hopes to gain. However, buying real estate can be a complicated and challenging experience. You must first determine your purchasing power and what kind of property is best suited for your needs. Factors to consider include financing, facilities, and location.
Before you can even consider buying a house, you need to know your needs and wants. You’ll have to identify the challenges you might be facing. By addressing these challenges upfront, you are proactive about finding your dream home.
Your objective
It is essential that you know what you want before making an offer on a property. If you want to own a home for personal use, then this should be your primary consideration when making an offer. However, if you plan to rent out your property after buying it, this will affect your decision and how much money you want to spend on it.
You also need to consider whether or not there are other people interested in buying this property if they have made an offer already, and, if so, how much they offered for it. These factors will help determine how much profit margin there is available for negotiation between both parties involved in buying or selling their property.
The seller’s motivation
If you want to buy a property, you need to know the seller’s motivation. If they are motivated, they will be willing to negotiate with you and make sure that they sell their house at the best price possible. You should also consider their financial situation and how much they can invest in repairing the house before making your offer. This will help you determine whether it is worth buying or not.
Location
The location of the property is another important factor. You should ensure that the property is located in an area where houses are selling fast and where many buyers are looking for houses like yours. This way, when you make your offer, there will always be interested buyers who will be willing to pay top dollar for your home just because of its location. In addition, if you plan on renting out your property after buying it, then choose an area where many potential tenants would love living in such a place.
Condition of the house
A good real estate agent will always inspect the house before making any offers on behalf of his client so that he can tell whether it is worth buying or not based on its physical condition alone.
Identification of the property
In order for an offer to be accepted, it must be specific and clear as to what exactly is being offered. The identification of the property should include its location and legal description. A legal description can be obtained from a surveyor who will provide a detailed map showing the exact location of your property. If there is any doubt about your property, you should consult an attorney who will help you get clarification on this matter.
Terms
The terms of any offer must be clear, so there is no room for misunderstanding or misinterpretation later in this process. Standard terms include:
- Price.
- The due date for acceptance.
- Any other conditions that may apply in case either party fails to meet their obligations under this agreement.
For example, suppose one party wants more time before accepting an offer, and another party does not agree. In that case, both parties need to state clearly their position on this issue so that there is no further confusion later on down.
How do I write an offer letter for a property?
If you want to buy a house, you need to make an offer on the property. A bid is a legal document that explains your interest in purchasing the home, along with details about your target closing date and mortgage financing.
This post will address the basics of what goes into an offer letter and how you can write one that works for you.
1) Address the seller by their name
When writing an offer letter, it’s essential to use proper etiquette by addressing the seller by their name in the first paragraph. You could say:
Dear Mr. Smith,
2) State the things you like about the home
One of the best ways to get an offer accepted is by highlighting everything that makes this home unique from others on the market — whether it’s its updated kitchen or spacious backyard. It’s also helpful to include any specific features that would make this house a perfect fit for your family or investment portfolio. For example:
This charming home has been updated over time with modern amenities like stainless steel appliances and granite countertops in both bathrooms. The large backyard has plenty of space for entertaining friends and family during those warm spring months!
3) Share something about yourself too
When writing an offer letter, it’s essential to keep it brief and straightforward. Don’t get too personal; focus on the property’s details. For instance, if you’re writing about how much you love the neighborhood or want to live near your family, these things will come up naturally during the negotiation process anyway. When writing your letter, please focus on the basics: who is making the offer (namely, you), what is being offered (the property itself), when it’s being offered (the date it’s available for purchase), how much is being offered (the purchase price) and why it’s being offered (your motivation for buying).
In addition to addressing these fundamental questions, include a personal touch by sharing something about yourself or simply stating what drew you to this property. For example: “I’m excited about moving into my new home because I’ve always dreamed of having [______________].” Or: “I’m looking forward.
4) Keep it short
An offer letter should be one page long at maximum. Keep your language simple and easy to understand.
Explain why you want to buy this particular home. Please talk about the things that you have in common and why they are important to you, such as proximity to schools or parks or proximity to family members’ houses or jobs. It’s essential to keep this part brief but honest; if you don’t have a good reason for wanting this particular house, it will come across in your writing and can result in a quick rejection from the seller’s agent or even from the seller directly if he or she reads your letter before signing it over to their agent for review.
FAQs
What is an Offer to Purchase Real Estate?
An Offer to Purchase Real Estate is a formal document that a buyer submits to a seller, expressing the intention to purchase a property at a specified price and under certain conditions.
Is an Offer to Purchase legally binding?
Yes, once it’s signed by both the buyer and the seller, it becomes a legally binding agreement. However, it may contain contingencies that could void the agreement if not met.
Can you withdraw an Offer to Purchase?
An offer can be withdrawn before the seller accepts it. Once accepted, it becomes a binding contract, and withdrawing may have legal and financial consequences.
What is a counteroffer?
A counteroffer is a response from the seller, proposing different terms, such as a higher price or a changed closing date. The buyer can accept, reject, or make another counteroffer.
What happens after the seller accepts the offer?
Upon acceptance, the offer becomes a contract, and the buyer typically deposits earnest money. Both parties then work towards meeting the contingencies and closing the deal.
How long does a seller have to respond to an offer?
The response time may be stipulated in the offer, but it’s typically 24 to 72 hours. However, this can vary based on local customs and individual circumstances.
Can I make an offer on a house that is contingent?
Yes, but it’s often termed as a “backup offer” in case the primary offer falls through.
Should I work with a real estate agent when making an offer?
While not mandatory, working with a real estate agent can provide valuable insight, experience, and assistance in drafting a competitive offer and navigating the buying process.
What should be included in an Offer to Purchase?
- The offer should include:
- Offer price
- Deposit amount
- Closing date
- Conditions or contingencies
- Description of the property
- Any items included or excluded in the sale.
What are common contingencies in an Offer to Purchase?
- Common contingencies include:
- Financing approval
- Home inspection satisfactory to the buyer
- Appraisal meeting a certain value.













































![Free Printable Roommate Agreement Templates [Word, PDF] 1 Roommate Agreement](https://www.typecalendar.com/wp-content/uploads/2023/06/Roommate-Agreement-150x150.jpg)
![Free Printable Credit Card Authorization Form Templates [PDF, Word, Excel] 2 Credit Card Authorization Form](https://www.typecalendar.com/wp-content/uploads/2023/06/Credit-Card-Authorization-Form-150x150.jpg)
![Free Printable Stock Ledger Templates [Excel,PDF, Word] 3 Stock Ledger](https://www.typecalendar.com/wp-content/uploads/2023/08/Stock-Ledger-150x150.jpg)
